CORTINA
“The hospital in Cortina d’Ampezzo gets a new look”
FELICIANA MARIOTTI
Inverno 2019-2020
NOVECENTO
ARCHITETTURE E CITTà DEL VENETO
“Setti rossi penetrano i volumi e caratterizzano l’ampliamento”
Giugno 2018
IMPRESE EDILI
“Due volumi innovativi sicuri e accoglienti”
Giugno 2015
IMPRESE EDILI
“Accessi e collegamenti delle strutture”
Novembre 2014
GALILEO
duecentootto
“Palazzo Bolis”
Gennaio 2013
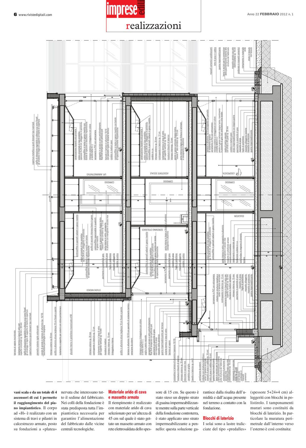
IMPRESE EDILI
“Corpo aggettante in acciaio rivestito”
Febbraio 2012
PIAZZA INDIPENDENZA
“Spazio di aggregazione sociale, culturale ed economica per una comunità che guarda al futuro”
DINO CASAGRANDE
2012
NOVECENTO
ARCHITETTURE E CITTà DEL VENETO
DAVIDE LONGHI con la collaborazione di Riccardo Rampazzo
2012
GALILEO
duecentodue
“Spazio di aggregazione sociale, culturale ed economica per una comunità che guarda al futuro”
Ottobre – Novembre 2011
IMPRESE EDILI
“Sistema di lastre in lamiera di alluminio a giunti drenanti”
Aprile 2010
AZIENDA ULSS 15 “Alta Padovana”
”Il Centro Servizi Socio Sanitari “Guido de Rossignoli”
MATTEO BRASCA
2010
IMPRESE EDILI
“Sistema di lastre in lamiera di alluminio a giunti drenanti”
Aprile 2010
IMPRESE EDILI
“Contenere i costi in copertura? Si, con due materiali diversi ma…attenzione alle pendenze”
Marzo 2009
PROGETTARE E COSTRUIRE CON IL FIBROCEMENTO
Municipio di Vescovana
MATTEO BRASCA
2008
IMPRESE EDILI
“Forme semplici e materiali innovativi”
Settembre 2008
AZIENDA ULSS 15
“Alta Padovana”
“L’Ospedale di Camposampiero: Uomini, Esperienze, Progetti”
2003
IMPRESE EDILI
“Forme semplici e materiali innovativi”
Settembre 2008
IMPRESE EDILI
“Forme semplici e materiali innovativi”
Settembre 2008
IMPRESE EDILI
“Forme semplici e materiali innovativi”
Settembre 2008


































































































